Floor Plan Details
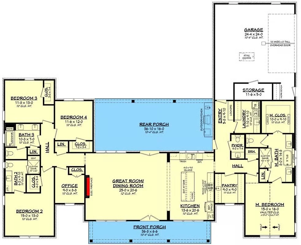
2,888 sq ft
4 bed
3.5 bath
2 garage
More Information
A spacious 238 sq. ft. front porch welcomes you into a formal foyer, where 10 ft. ceilings and a dedicated home office create a professional yet inviting environment for remote work or peaceful study.
At the heart of the home lies a generous great room that flows effortlessly into the kitchen and dining areas, centered around a large island and complemented by a walk in butler's pantry for seamless organization and meal prep.
For utmost privacy, the primary suite boasts a spa like bathroom and convenient access to the laundry room, while the three additional bedrooms are thoughtfully located in the opposite wing of the ranch style layout, ensuring tranquility for all residents.
Combining practicality with style, the mudroom area connects the side entry garage to the main living space and features a dedicated storage room for tools, hobby supplies, or seasonal items.
Contact Us
Interested in learning more? Fill out the contact form below and one of our team members will reach out to you.
Curated by Architectural Designs

