Floor Plan
The Kensington
This spacious 2,542 sq. ft. modern contemporary house plan boasts 2 bedrooms, 2 full bathrooms, and an impressive 1,180 sq. ft. angled three-car attached garage. The exterior is enhanced by a sophisticated facade adorned with stone accents and horizontal siding.
Floor Plan Type: 1 Story Floor Plan Size: 2,542 sq ft
Floor Plan Details
2,542 sq ft
2 - 4 bed
2.5 - 3.5 bath
3 garage
More Information
Step into a magnificent entryway with soaring 10 ft. ceilings, instantly creating a feeling of spaciousness and brightness. To your right, a dedicated study offers a serene retreat, while the main axis flows into an expansive open concept living area designed for effortless interaction and connection.
At the heart of the home lies a gourmet kitchen, featuring a sizable island and a convenient walk in pantry, seamlessly connecting to the elegant dining area and a cozy family room. Additionally, an adjacent hearth room provides an intimate setting for relaxation or quiet conversations.
The luxurious primary bedroom suite, conveniently located on the main level, boasts a spacious walk in closet with direct access to the main level laundry room, streamlining your daily routine. A private guest bedroom with an adjoining full bath ensures comfort and privacy for visitors.
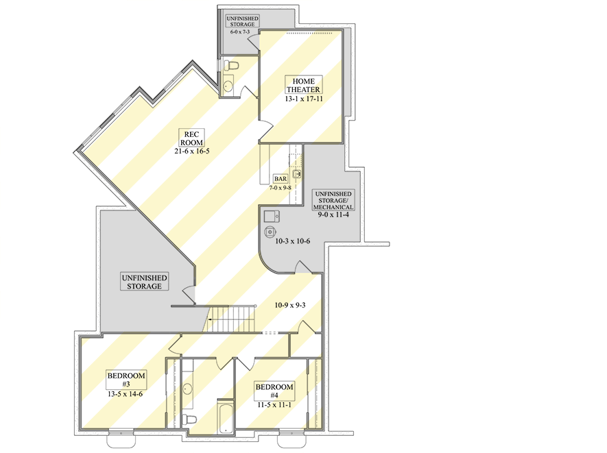
For entertainment and leisure, the optional lower level reveals a versatile recreation room, ideal for games and gatherings, along with a dedicated home theater that promises cinematic experiences, enhanced by a stylish wet bar for easy entertaining.
Embrace the joys of outdoor living with a large covered deck extending from the family room, creating the perfect spot for al fresco dining or enjoying your morning coffee.
Contact Us
Interested in learning more? Fill out the contact form below and one of our team members will reach out to you.
Curated by Architectural Designs

